Renovierte Mansarde in der St.-Katharina-Straße in Meran

445.000 €
104 m²
Oberfläche
2
die Zimmer
1
Badezimmer
zu verkauf
3-zimmer-wohnung
Merano [Maia]
Beschreibung
Sanierte Dachgeschosswohnung in der Via Santa Caterina in Meran, gelegen in einer der begehrtesten Wohnlagen der Stadt, umgeben von historischen Villen und großzügigen Grünflächen. Die Lage garantiert Ruhe und Privatsphäre und ist zugleich bequem an das Stadtzentrum sowie an alle wichtigen Dienstleistungen angebunden.
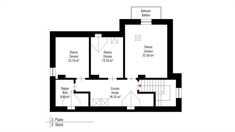
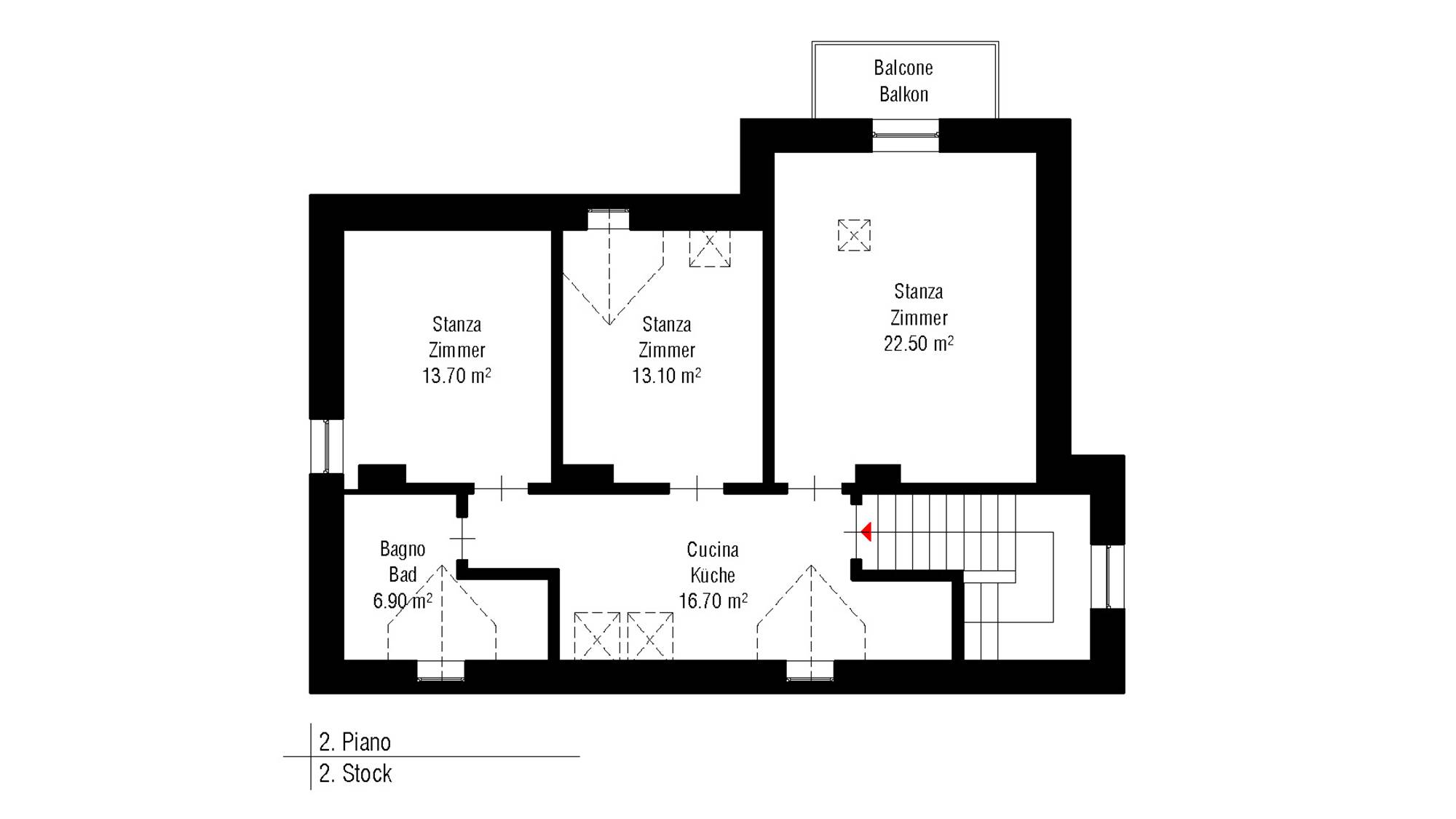
Die Immobilie befindet sich im obersten Stockwerk eines kleinen Mehrparteienhauses und wurde unter Erhalt des ursprünglichen Charakters renoviert. Sichtbare Holzbalken verleihen den Räumen Wärme und eine besondere Atmosphäre. Die Raumaufteilung ist funktional und gut durchdacht, mit einem einladenden Wohnbereich, Küche, zwei Schlafzimmern und Badezimmer. Aufgrund der Aufteilung und Größe eignet sich die Wohnung sowohl ideal für eine Familie als auch für ein Paar, das in einem exklusiven und grünen Umfeld wohnen möchte.
Ein besonderes Merkmal ist das kleine, zentral positionierte Zwischengeschoss mit einer maximalen Höhe von ca. 1,60 m, das sich optimal als Abstellfläche, Hobbybereich oder gemütliche Relaxzone nutzen lässt und harmonisch in die Architektur des Dachgeschosses integriert ist.
Abgerundet wird das Angebot durch einen Balkon mit angenehmem Blick ins Grüne, helle Räume sowie eine ruhige und private Wohnatmosphäre. Diese Immobilie stellt somit eine attraktive Lösung für alle dar, die eine charaktervolle Hauptwohnung in einer der schönsten Straßen von Meran suchen.

Tutte le informazioni sono riportate indicativamente e possono essere soggette a modifica in qualsiasi momento.

La RELIVE REAL ESTATE offre ai propri clienti una gamma completa di servizi in grado di coprire tutte le esigenze di chi opera nel settore immobiliare. Offriamo una gamma completa di servizi di consulenza immobiliare per investitori.

Assistiamo il cliente nella commercializzazione di immobili fornendo, al contempo, servizi personalizzati a livello locale. Effettuiamo valutazioni nazionali per tutte le tipologie di immobili che analizzano la qualità delle proprietà, il valore di beni simili, e i trend d’investimento attuali e futuri di ogni singolo mercato.
Hauptmerkmale
Objekt-Nr.:
V000433
Gemeinde:
Merano (Maia)
Kategorie:
3-Zimmer-Wohnung
die Betriebskosten:
100 € / jahr
Räume:
3
die Zimmer:
2
Badezimmer:
1
qm:
104
Begehbare Quadratmeter:
73
Keller m2:
25
Balkone:
1
Etage:
2
Jahr:
1910
Energieklasse:
G
282,75 kWh/m²a
Zustand Immobilie:
saniert
Gesamteindruck:
gepflegt
Lage:
Hügel
Ausblick:
freie Sicht
Ausrichtung:
Nord West / Süd Ost
Freie Seiten:
4
Garten:
gemeinschaftlich
Ausstattung:
Übernahme möglich
Wohnraum-Typologie:
Wohnzimmer
Küche:
Wohnküche
Heizung:
autonom
Heizungsart:
Heizkessel
Heizungstyp:
Heizkörper
Energiequelle:
Erdgas
Warmwasser:
autonom
Tür/Fensterrahmen:
Holz doppelverglast
Türen / Fenster:
gut
Barrierfrei:
nein
die Zubehöre
Rauch
Kleiderschrank
Grundrisse
Virtueller Rundgang
der Lageplan
via Santa Caterina - Merano (BZ)
Sofortanfrage zum objekt
Cookie preference